2018-09-03 14:19:05
項目名稱:珠海華發山莊室內設計項目
服務內容:室內設計
簽約時間:2018.8.16
設計時間:45天
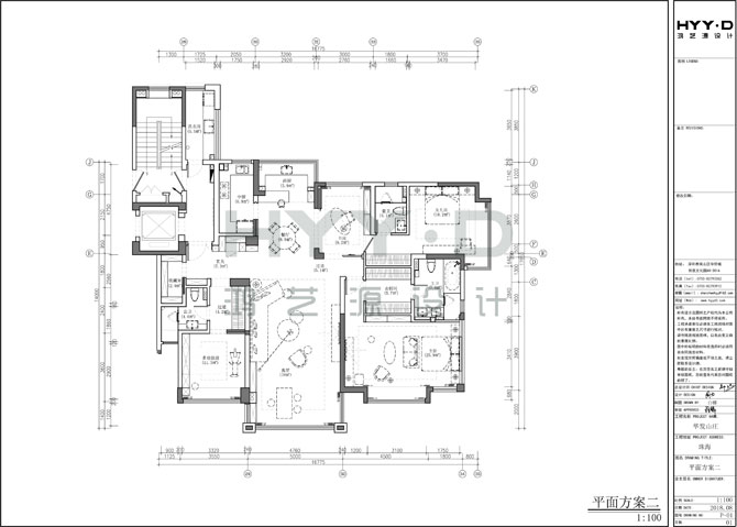
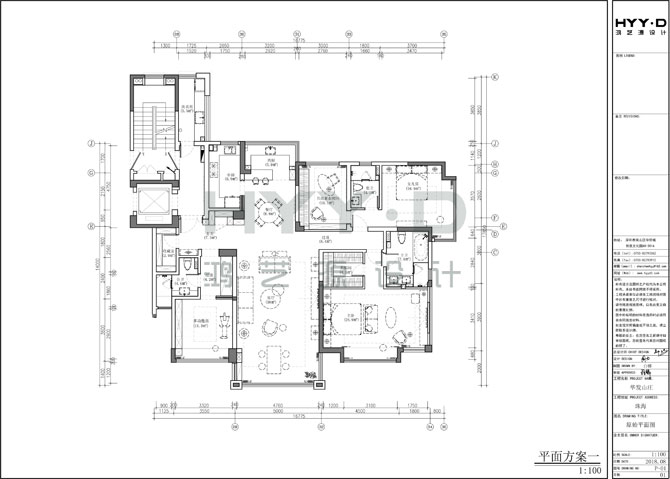
珠海華發山莊室內設計平面圖
上一篇 最新簽約--深圳恒裕濱城二期室內軟裝設計
下一篇 最新簽約--桂林香檳小鎮售樓處和樣板房室內設計
0755-8279-3362