2018-08-15 18:28:12
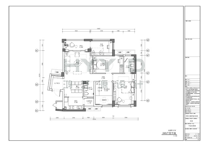
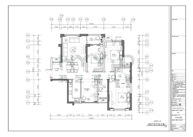
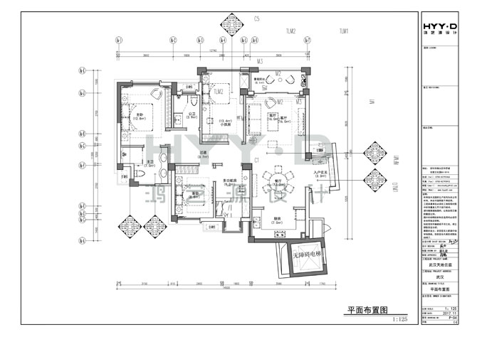
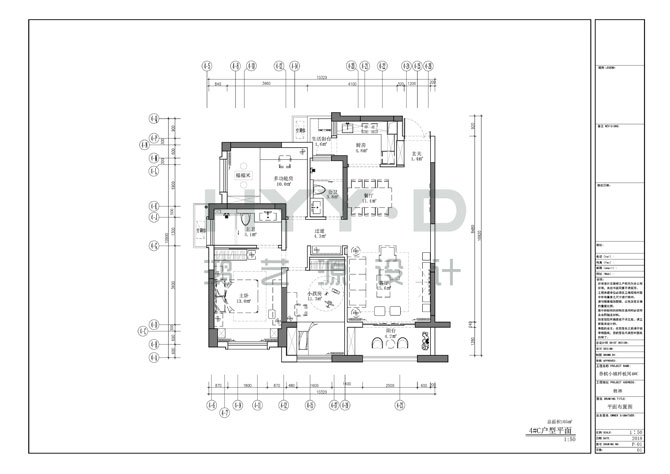
項目名稱:桂林香檳小鎮售樓處和樣板房室內設計項目
設計面積:1000㎡
服務內容:室內設計
簽約時間:2018.05.18
設計時間:60天
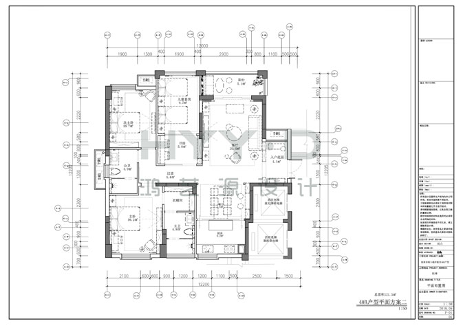
桂林香檳小鎮售樓處和樣板房戶型圖
上一篇 最新簽約--珠海華發山莊室內設計
下一篇 最新簽約--深圳壹方中心∣玖譽室內設計
0755-8279-3362