2018-08-15 14:56:53
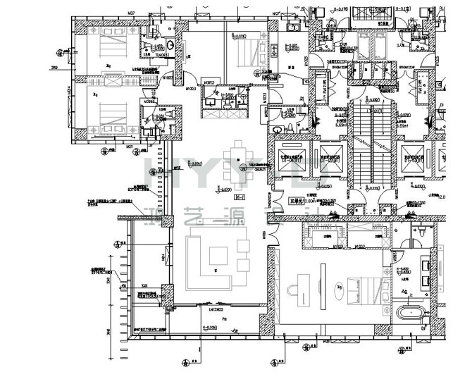
項目名稱:華僑城新天鵝堡01戶型室內軟裝設計項目
設計面積:374.62㎡
服務內容:硬裝局部改造、軟裝設計
簽約時間:2018.4.1
設計時間:30天
新天鵝堡豪宅設計戶型圖
上一篇 最新簽約--招商雙璽01戶型室內軟裝設計
下一篇 最新簽約:深圳碧海云天15C室內設計
0755-8279-3362