2019-05-20 13:55:00
項目名稱:深圳翡翠海岸花園軟裝設計項目
設計面積:㎡
服務內容:軟裝設計
簽約時間:2019.05.20
設計時間:天
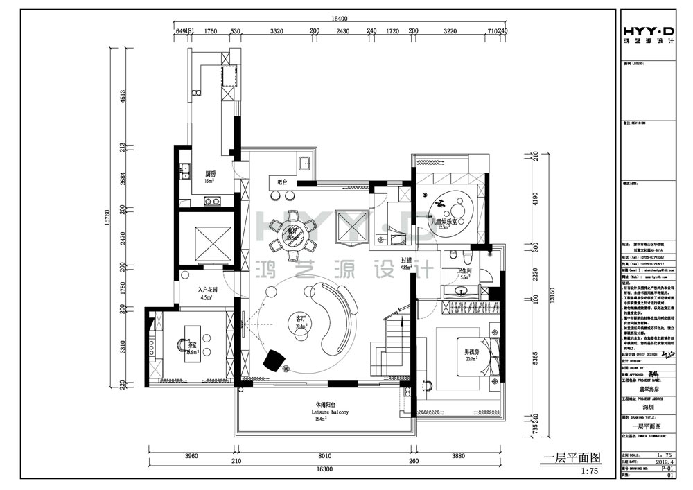
深圳翡翠海岸花園軟裝設計一層平面圖
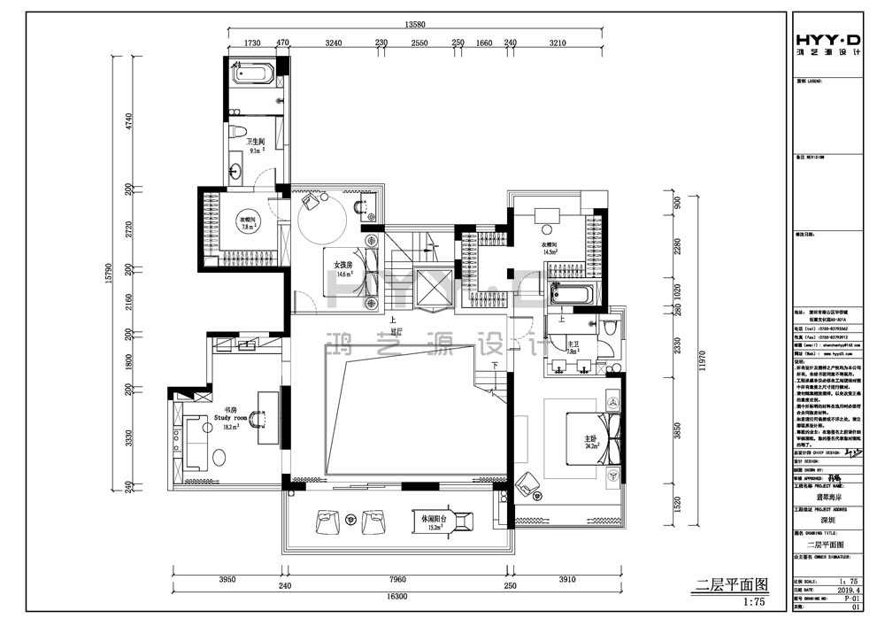
深圳翡翠海岸花園軟裝設計二層平面圖
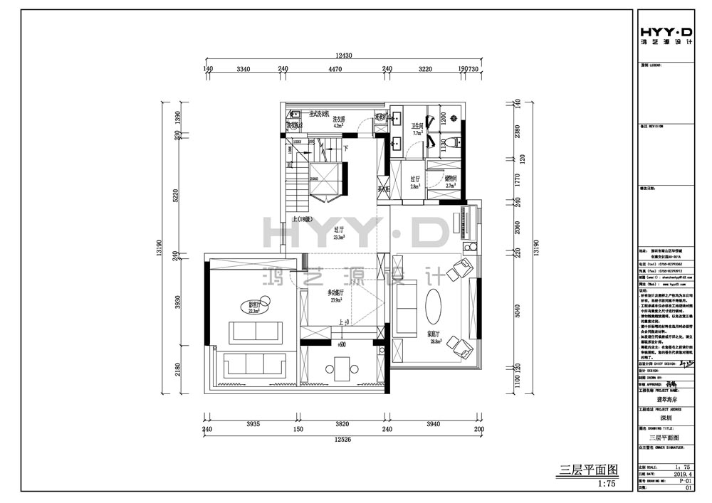
深圳翡翠海岸花園軟裝設計三層平面圖
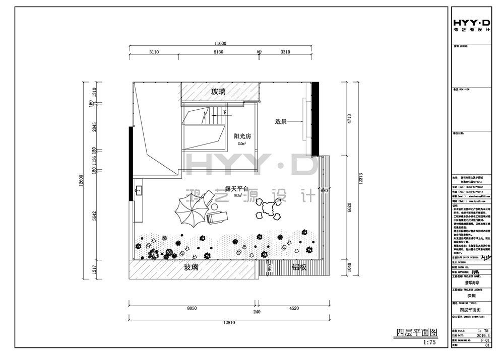
深圳翡翠海岸花園軟裝設計四層平面圖
上一篇 最新簽約--廣西南溪山售樓處室內設計!
下一篇 最新簽約--深圳華僑城新天鵝堡二期03戶型室內設計!
0755-8279-3362