2019-08-02 15:05:00
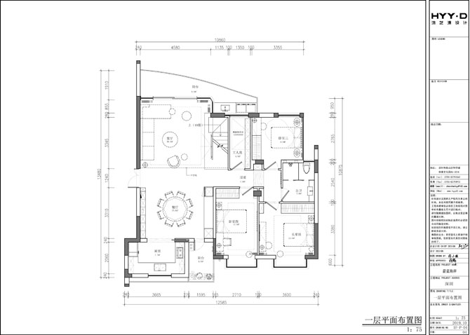
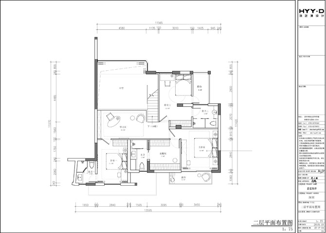
項目名稱:深圳蔚藍海岸復式室內設計項目
設計面積:㎡
服務內容:室內設計
簽約時間:2019.8.2
設計時間:60天
深圳蔚藍海岸復式平面圖
上一篇 最新簽約--深圳雍祥居室內設計!
下一篇 最新簽約--深圳山語清暉室內設計!
0755-8279-3362