2018-10-10 11:45:27
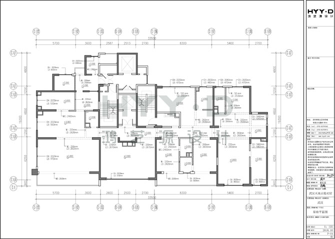
項目名稱:武漢天地云廷T4戶型室內設計項目
設計面積:515㎡
服務內容:室內設計
簽約時間:2018.09.20
設計時間:60天
武漢天地云廷T4豪宅室內設計原始結構圖
上一篇 最新簽約--陽光帶海濱城一期室內設計
下一篇 最新簽約--深圳恒裕濱城二期B戶型室內設計
0755-8279-3362