2018-09-13 17:56:38
項目名稱:深圳沙河高爾夫別墅室內設計項目
服務內容:別墅室內設計
設計面積:500㎡
簽約時間:2018.9.5
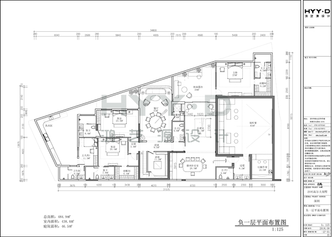
深圳沙河高爾夫別墅室內設計負一層平面圖
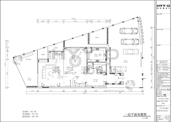
深圳沙河高爾夫別墅室內設計一層平面圖
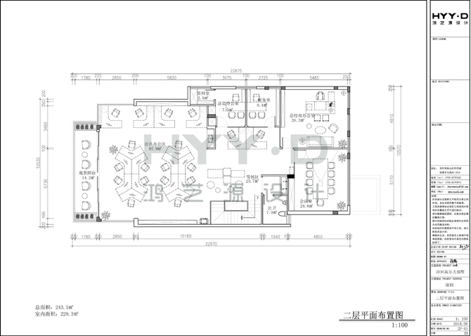
深圳沙河高爾夫別墅室內設計二層平面圖
上一篇 最新簽約--深圳三湘海尚室內設計
下一篇 最新簽約--深圳恒裕濱城二期室內軟裝設計
0755-8279-3362