2018-08-14 15:41:41
項目名稱:招商雙璽A棟室內設計項目
服務內容:室內設計
簽約時間:2018.6.6
設計時間:30天
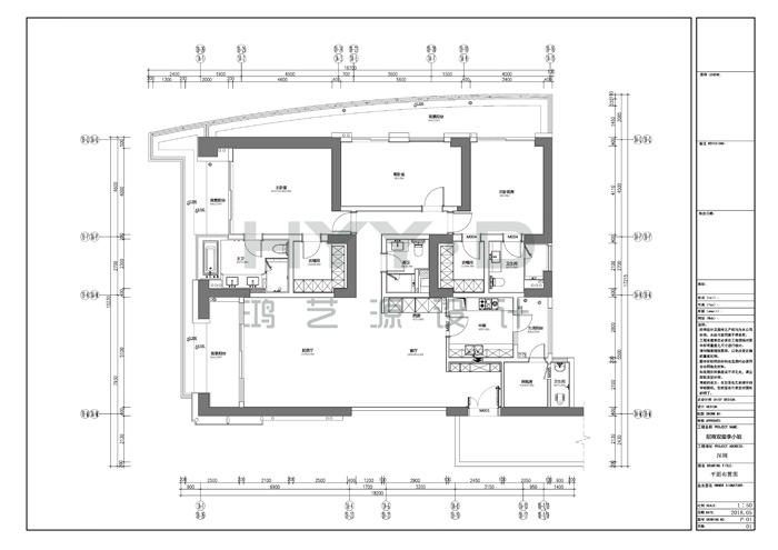
招商雙璽A棟室內設計原始平面圖
上一篇 最新簽約:深圳新世界名鐫室內設計
下一篇 已是最后一條
0755-8279-3362