2019-03-12 16:35:00
項目名稱:深圳星河傳奇復式室內設計
設計面積:㎡
服務內容:室內設計
簽約時間:2019.03.12
設計時間:60天
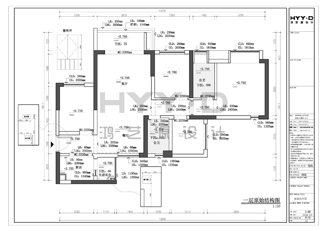
深圳星河傳奇復式室內設計一層原始平面圖
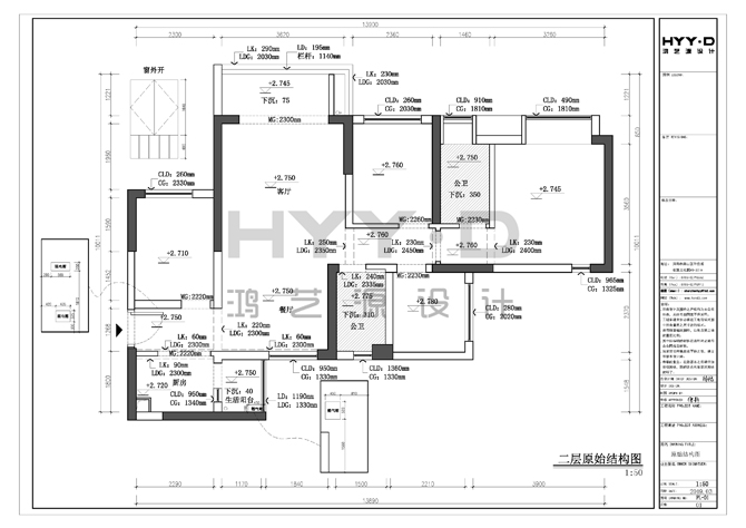
深圳星河傳奇復式室內設計二層原始平面圖
上一篇 最新簽約--深圳華僑城新天鵝堡二期室內設計!
下一篇 最新簽約--深圳浪琴半島花園室內軟裝設計
0755-8279-3362