2018-11-06 14:33:00
項目名稱:最新簽約--深圳君匯新天室內設計項目
設計面積:250㎡
服務內容:室內設計
簽約時間:2018.11.06
設計時間:60天
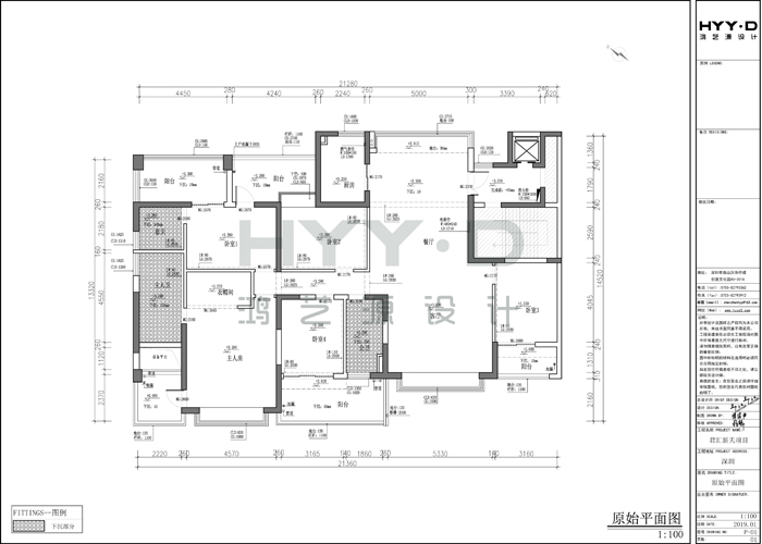
深圳君匯新天原始平面圖
上一篇 最新簽約--深圳波托菲諾純水岸一期室內設計項目
下一篇 最新簽約--深圳星河丹堤復式軟裝設計
0755-8279-3362