2022-04-09 15:04:41
在做私宅別墅裝修設計時,鴻藝源設計傾向于根據業主的文化品位、審美情趣、生活禮儀、日常習慣、個人性格等范疇建立設計與美學認同,從普適到定制,從大眾到個性,實現業主專屬的理想生活空間,切實貼合每位家庭成員的生活所需與所想。
-客廳
位于深圳蛇口片區招商雙璽的這套3層別墅,坐擁山、海、城景象,攬闊15公里濱海長廊風光、發達的金融商圈,地理位置與生活舒適度極佳。在這套私宅設計中,設計師鄭鴻基于業主的文學藝術修養與審美意向,以現代簡潔黑白視像,間以明媚的亮色塊點綴,呈現純粹靜謐的氛圍,藏匿于其后的是文化與藝術交融薈萃的空間內涵。
花白大理石結合空間光影的雕刻感,與木制地板的溫潤形成對比,材料的表現力在簡雅的環境背景下被發揮到了極致。背景收納墻的滑門以細框黑線勾勒,時尚而帶有一點俏皮。普魯士藍色輕質紗簾的介入,呼應著海景的靜謐與深邃,呈現空間跳躍的韻律感。角落一隅布設了一個飽滿欲滴的蘋果造型藝術裝置,極致的色彩、形象與表現力吸引著觀者的視線焦點。
別墅裝修設計-休閑廳
休閑廳以乳白的干凈簡雅作為基底,間以普魯士藍的優雅調動空間氛圍,一幅抽象主義的藝術掛畫引起觀者無限的想象。
沙發背后以開放式書架作為隔斷,豐富空間動線與層次感,而亞克力材質的嵌入將空間映襯得更為朗闊清亮。空間整體在現代中又透露出藝術的風貌,純粹之余又擁有璀璨的焦點。
別墅裝修設計-餐廳
餐廳設計在延續空間主調的基礎上,融入自然綠意盎然的生姿。熱帶闊葉植物弧形裝飾板,與窗外的蔥翠青松相映襯,一邊是熱鬧明媚的叢林生趣,一邊是清冽靜謐的山崖,迎面散開的是樸拙而動人的空間氣質。明黃色單椅的點綴,洋溢著生活最為明媚的美好。
別墅裝修設計-主臥
全明落地窗納入窗外四季風光意景,普魯士藍與沙橘色的配搭使得主臥空間顯得更有精尚且優雅的藝術視像,加上現代極簡形制的家具相映互搭,不僅描摹出空間簡而溢美的觀感,亦呈現了設計師在材質與品質細節上的把控與專業。
別墅裝修設計-次臥
火焰橘、麻灰與薄荷綠看似矛盾的搭配,反而營造出十分養眼的空間視效,雅致中有著扣人心弦的低調。飄窗旁的單椅與壁燈、床品的幾何性與抽象小品的意味深繁,秩序多變,用色亦絢爛,凸顯出現代審美與實用的完美結合,予以極具個性與表現力的空間體驗。
別墅裝修設計-樓梯
藝術的凝練感已悄然滲透于空間節奏之中,如同輕煙淡彩般縈繞,使人在搖曳的靈動與諧和中感受意趣。
別墅裝修設計-藝術廊&展覽室
位于負一層空間的是業主的私人藝術廊與藏品展覽室。簡凈的空間視像,一面素樸,一面超驗,呈現出藝術復雜而多元的樣子。錯落而不規則的墻面設計別出心裁,設計師特地運用差異化燈光,對不同材質、不同主題的藝術品進行意境與氛圍的營造,或凝練,或輕盈,流露出藏品獨特且不凡的藝術氣質。
別墅裝修設計-庭院
人在喧鬧的都市中,需要這樣一隅藝術靜地,有高于日常的儀式精髓,亦有親近于生活的姿態。藝術沉凝與純粹之視像,無時無刻不豐盈著居者內在的精神世界。
▽
鴻藝源設計,所見即所得
近20年豪宅設計歷程,鴻藝源設計堅持要求實現“所見即所得”的設計,讓客戶擁有真正希冀的、美好的、豐盛的私享生活空間。這對設計團隊來說,是專業和資源的考驗與挑戰,需要擁有高于客戶的審美和體驗,擁有足夠強大的供應商體系,更要擁有對專業的極致追求和實現能力。
別墅裝修設計家庭廳效果圖
別墅裝修設計家庭廳實景圖
別墅裝修設計客廳效果圖
別墅裝修設計客廳實景圖
別墅裝修設計餐廳效果圖
別墅裝修設計-餐廳實景圖
別墅裝修設計-藝術廊&展覽室效果圖
別墅裝修設計-藝術廊&展覽室實景圖
別墅裝修設計一層平面圖
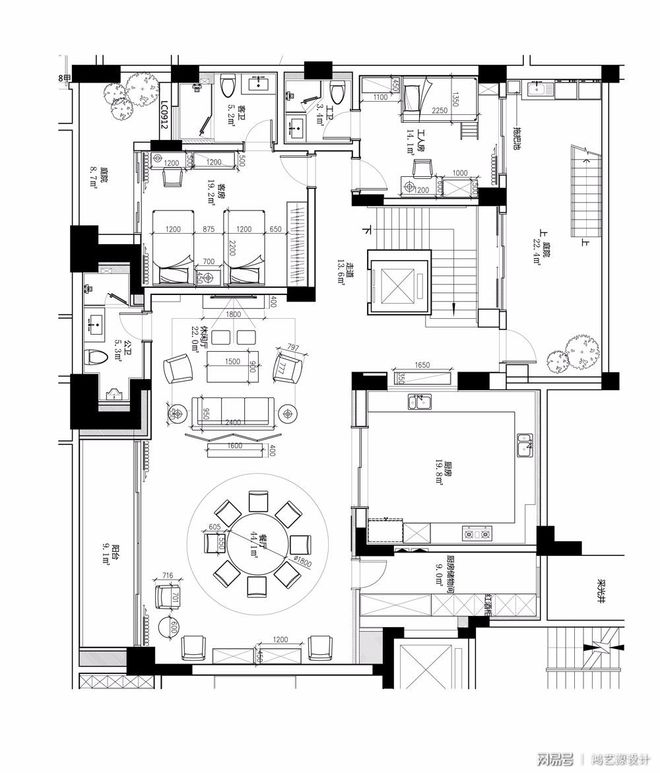
別墅裝修設計二層平面圖
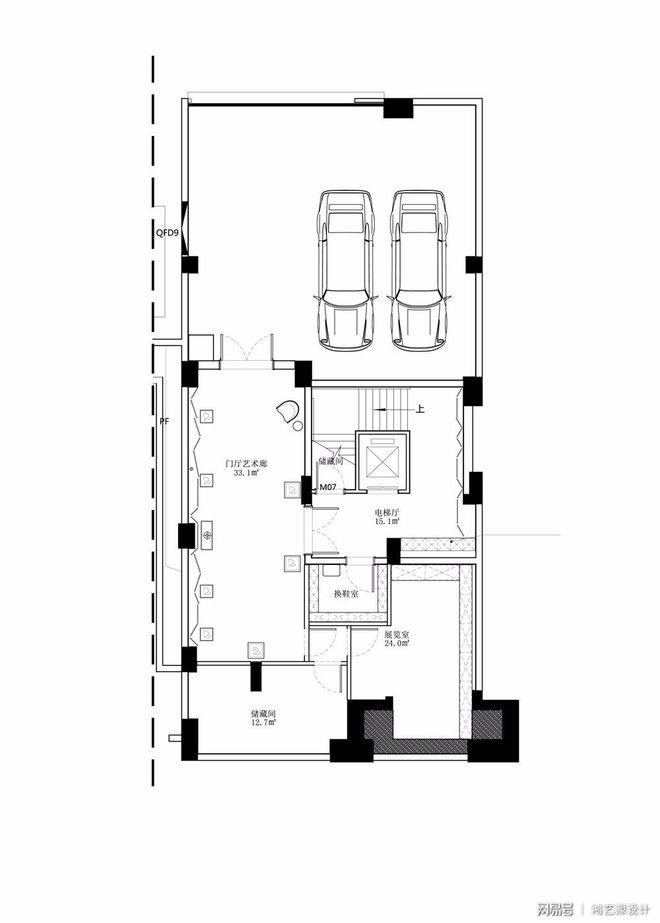
別墅裝修設計負一層平面圖
項目名稱 | 深圳招商雙璽私人別墅
項目地址 | 廣東 深圳
設計面積 | 600㎡
項目時間 | 2019年6月
硬裝設計 | 鴻藝源設計
硬裝總監 | 鄭鴻
軟裝設計 | 例外軟裝設計
軟裝總監 | 徐靜
鴻藝源別墅裝修設計丨招商雙璽私人別墅:當藝術融入生活
標簽:別墅設計、別墅軟裝設計、別墅裝修設計、別墅裝修公司、別墅裝飾設計
上一篇 別墅裝修設計的步驟流程